Brúarland, Eyjafjarðarsveit – auglýsing deiliskipulagstillögu

Fréttir Deiliskipulagsauglýsingar

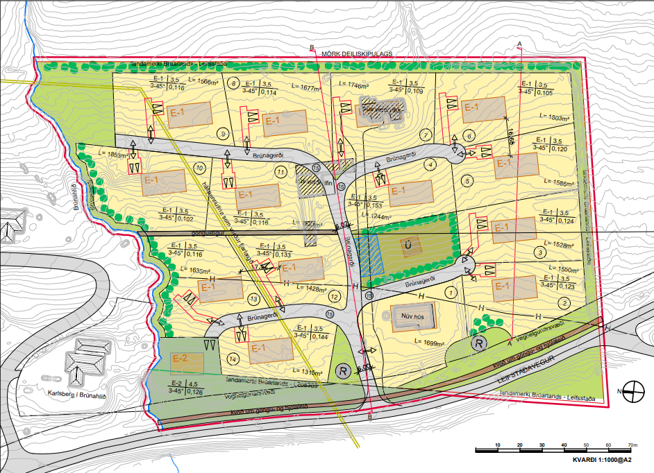
Sveitarstjórn Eyjafjarðarsveitar samþykkti á fundi sínum þann 16. júní 2022 sl. að vísa deiliskipulagstillögu fyrir íbúðarsvæði í landi Brúarlands í auglýsingu skv. 1. mgr. 41 gr. skipulagslaga nr. 123/2010. Skipulagstillagan gerir ráð fyrir 15 nýjum íbúðarlóðum á svæði sem auðkennt er ÍB15 í Aðalskipulagi Eyjafjarðarsveitar 2018-2030. Áformað er að eldra deiliskipulag sem í gildi er á svæðinu falli úr gildi við gildistöku nýs deiliskipulags auk þess sem skipulagstillagan gerir ráð fyrir að núverandi íbúðar- og útihús á Brúarlandi víki.
Skipulagstillagan er aðgengileg á sveitarskrifstofu Eyjafjarðarsveitar, Skólatröð 9 Hrafnagilshverfi, milli 21. júní og 2. ágúst 2022 sem og á heimasíðu sveitarfélagsins, esveit.is. Þeim sem telja sig eiga hagsmuna að gæta er hér með gefinn kostur á að gera athugasemdir við skipulagstillögurnar til þriðjudagsins 2. ágúst 2022. Athugasemdir skulu vera skriflegar og skulu berast á sveitarskrifstofu Eyjafjarðarsveitar, Skólatröð 9 Hrafnagilshverfi, 605 Akureyri, eða í tölvupósti á netfangið sbe@sbe.is.

Uppdráttur

Greinargerð

Skipulags- og byggingarfulltrúi.