Brúarland, Eyjafjarðarsveit – kynning skipulagstillögu á vinnslustigi

Fréttir Deiliskipulagsauglýsingar


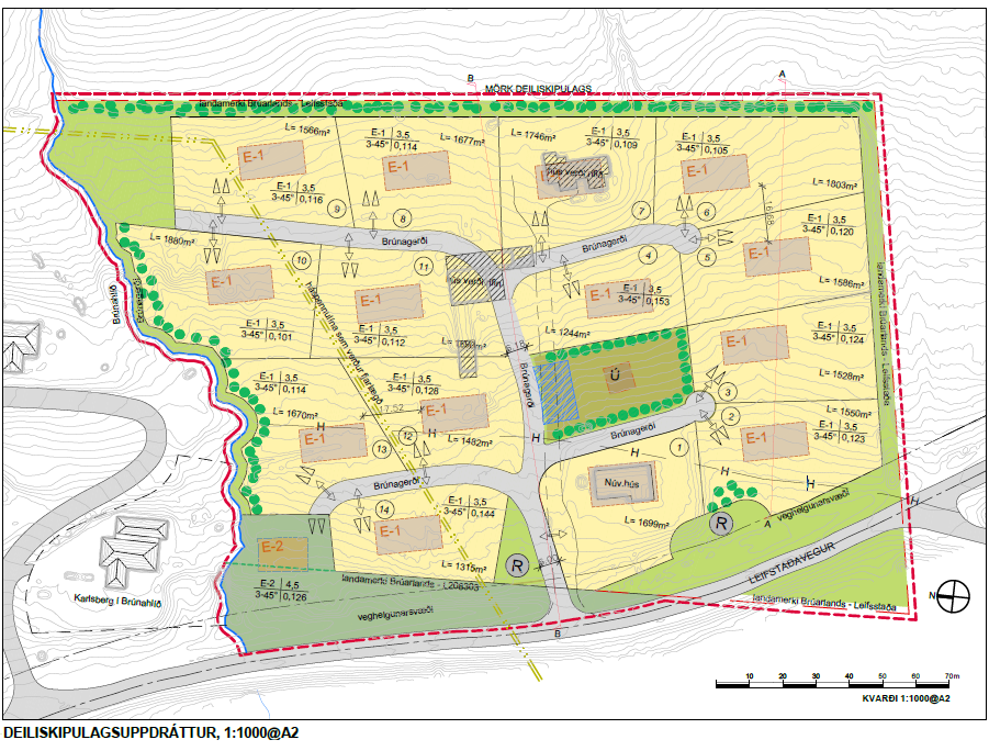
Sveitarstjórn Eyjafjarðarsveitar samþykkti á fundi sínum þann 4. maí 2022 sl. að vísa deiliskipulagstillögu fyrir íbúðarsvæði í landi Brúarlands í kynningarferli skv. 4. mgr. 40 gr. skipulagslaga nr. 123/2010. Skipulagstillagan gerir ráð fyrir 15 nýjum íbúðarlóðum á svæði sem auðkennt er ÍB15 í Aðalskipulagi Eyjafjarðarsveitar 2018-2030. Áformað er að eldra deiliskipulag sem í gildi er á svæðinu falli úr gildi auk þess sem gert er ráð fyrir að núverandi íbúðar- og útihús á Brúarlandi víki.

Skipulagstillagan er aðgengileg á sveitarskrifstofu Eyjafjarðarsveitar, Skólatröð 9 Hrafnagilshverfi, milli 11. maí og 1. júní 2022 sem og á heimasíðu sveitarfélagsins, esveit.is. Meðan á kynningu stendur gefst almenningi kostur á að koma ábendingum vegna skipulagstillögunnar á framfæri við skipulags- og byggingar fulltrúa sveitarfélagsins.

Opið hús vegna kynningarinnar fer fram á sveitarskrifstofu Eyjafjarðarsveitar, Skólatröð 9 Hrafnagilshverfi, fimmtudaginn 26. maí milli kl. 12:00 og 15:00. Opið hús fer fram í samræmi við gr. 5.6.1. í skipulagsreglugerð nr. 90/2013 og mun skipulagsfulltrúi vera viðstaddur og veita upplýsingar um skipulagstillöguna og taka við ábendingum.

Skipulags- og byggingarfulltrúi

bruarland-dsk_07_21_025_greinargerd-22-04-2022.pdf

bruarland-dsk_07_21_025_uppdrattur-22-04-2022.pdf