Hrafnagilsskóli, Eyjafjarðarsveit – auglýsing deiliskipulagstillögu fyrir nýjan leikskóla

Fréttir Deiliskipulagsauglýsingar

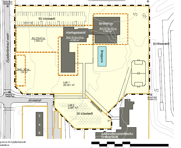
Sveitarstjórn Eyjafjarðarsveitar samþykkti á fundi sínum 3. júní 2021 að auglýsa tillögu að deiliskipulagi fyrir nýjan leikskóla á lóð Hrafnagilsskóla skv. 41. gr. skipulagslaga nr. 123/2010.

Skipulagstillagan tekur til byggingar nýs leikskóla vestan núverandi húsnæðis Hrafnagilsskóla og getur byggingin verið allt að 1200 fm að flatarmáli, stækka íþróttamiðstöð um u.þ.b. 700 fm auk þess sem gert er ráð fyrir 150 fm stóru gróðurhúsi á skólalóðinni. Skipulagstillagan tekur til svæðis sem skilgreint er sem svæði fyrir samfélagsstofnun (S1) í Aðalskipulagi Eyjafjarðarsveitar 2018-2030.

Deiliskipulagstillagan með liggur frammi á skrifstofu sveitarfélagsins frá 1. júlí til 12. ágúst 2021 og er auk þess aðgengileg á heimasíðu sveitarfélagsins, esveit.is. Þeim sem telja sig eiga hagsmuna að gæta er hér með gefinn frestur til fimmtudagsins 12. ágúst 2021 til að gera athugasemdir við skipulagstillöguna. Athugasemdir skulu vera skriflegar og skulu berast á skrifstofu Skipulags- og byggingarfulltrúa Eyjafjarðar, Skólatröð 9, Hrafnagilshverfi, 605 Akureyri, eða í tölvupósti á sbe@sbe.is.

Skipulags- og byggingarfulltrúi

 

Hlekkur á deiliskipulagstillögu