Deiliskipulag lóðar Hrafnagilsskóla – kynning skipulagstillögu á vinnslustigi

Fréttir Deiliskipulagsauglýsingar

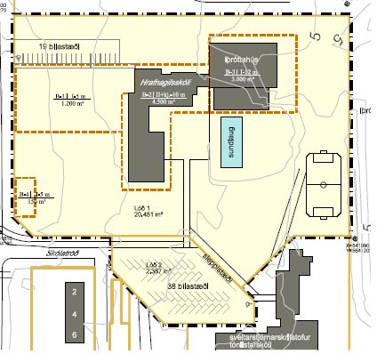
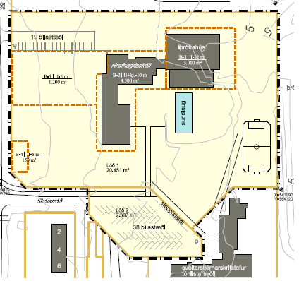
Sveitarstjórn Eyjafjarðarsveitar samþykkti á fundi sínum þann 3. júní sl. að vísa skipulagstillögu fyrir lóð Hrafnagilsskóla í kynningarferli skv. 4. mgr. 40 gr. skipulagslaga nr. 123/2010. Deiliskipulagstillagan skilgreinir byggingarreit og bílastæði fyrir nýjan leikskóla Hrafnagilshverfis sem ráðgert er að byggja við Hrafnagilsskóla. Deiliskipulagstillagan er hluti af vinnu sem nú stendur yfir við gerð heildstæðs deiliskipulags fyrir Hrafnagilshverfi.

Deiliskipulagstillagan er aðgengileg á sveitarskrifstofu Eyjafjarðarsveitar, Skólatröð 9 Hrafnagilshverfi, milli 7. júní og 25. júní 2021 sem og á heimasíðu sveitarfélagsins, esveit.is. Meðan á kynningu stendur gefst almenningi kostur á að koma ábendingum vegna skipulagstillögunnar á framfæri við skipulags- og byggingarfulltrúa sveitarfélagsins.

Opið hús vegna kynningarinnar fer fram á sveitarskrifstofu Eyjafjarðarsveitar, Skólatröð 9 Hrafnagilshverfi, mánudaginn 14. júní milli kl. 12:00 og 15:00. Opið hús fer fram í samræmi við gr. 4.6.1. í skipulagsreglugerð nr. 90/2013 og mun skipulags- og byggingarfulltrúi vera viðstaddur og veita upplýsingar um skipulagstillöguna og taka við ábendingum.

Deiliskipulag leikskólalóðar

Skipulags- og byggingarfulltrúi