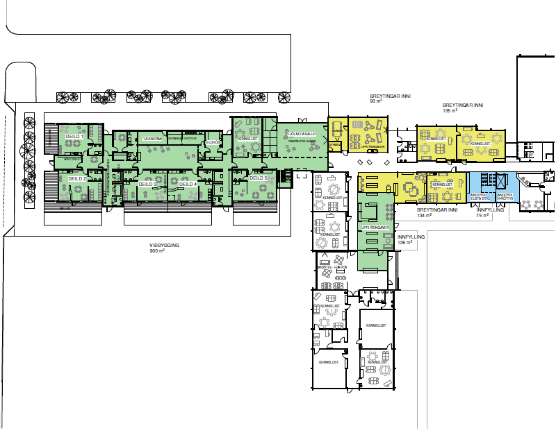
Nýbygging Hrafnagilsskóla - drög teikninga og umsagnartími

Fréttir

Framkvæmdaráð, fyrir hönd sveitarstjórnar, býður starfsmönnum sveitarfélagsins og íbúum nú að kynna sér fyrirliggjandi drög af skólabyggingu fyrir leik- og grunnskóla Eyjafjarðarsveitar. Opið verður fyrir móttöku athugasemda við fyrirliggjandi drög út sunnudaginn 25.apríl 2021 og verður þar hafður sami háttur á og varðandi greinagerð sveitarstjórnar. Athugasemdum skal þannig komið til skila gegnum heimasíðu Eyjafjarðarsveitar og verða þær birtar á heimasíðunni við fyrsta tækifæri.

Undirbúningur hönnunarinnar hefur nú tekið ríflega ár og hefur í fyrirliggjandi drögum verið tekið tillit til fjölmargra ábendinga sem komið hafa fram á þeim tíma bæði frá íbúum sveitarfélagsins sem og starfsmönnum skólanna.

Framkvæmdaráð óskar sérstaklega eftir því að starfsmenn skólanna gefi sér tíma til að rýna í drögin og koma fram með athugasemdir en að loknum þessum fresti verður hafist handa við lokahönnun. Þegar lokahönnun er hafin verður ekki mögulegt að koma fram með viðamiklar breytingar á þeim drögum sem unnið er með.

Teikningarnar má finna hér.

Umsögnum skal skilað inn hér og skal nafn á umsögn vera "umsögn um drög af teikningum".

 

Fyrir hönd framkvæmdaráðs Eyjafjarðarsveitar

Finnur Yngvi Kristinsson

Sveitarstjóri